
概述
GKG-12型矿用一般型高压开关柜,是3.6-12千伏三相交流50Hz单母线及单母线分段系统的成套配电装置,主要用于各类矿山、地铁、风电、住宅、工矿企事业配电以及电业系统的用户变电所的受电、送电及大型高压电动机启动等,进行控制、保护、监测之用。本开关设备满足GB/T12173《矿用一般型电气设备》、GB3906等标准要求,具有防止带负荷推拉断路器手车防止误分合断路器、防止接地开关处于闭合位置时关合断路器、防止误入带电隔室、防止在带电时误合接地开关的联锁功能、防止在断路器处于工作位置时二次插头脱落等联锁功能。本开关柜在结构上吸收了国内外各种柜型的优点,克服老产品存在的缺陷和不足,推出一种矿用一般型高压开关柜以满足煤矿、金属与非金属矿山井下及地面变电所使用的供配电设备。
型号及基本参数

基本参数
●额定电压:6kV10kV
●封顶电压:12kV
●额定频率:50Hz
●额定电流:50A、75A、100A、150A、200A、250A、300A、400A、500A、630A、800A、 1000A、1250A、1600A
●额定短路关合电流:80kA
●额定短路开断电流:16kA、20kA、25kA、31.5kA
●额定短时耐受电流:16kA、20kA、25kA、31.5kA
●额定峰值耐受电流:40kA、50kA、63kA、80kA
●操作回路额定电压:=110V、~127V、=220V
●外壳防护等级:IP54
额定绝缘水平表

使用环境条件
●环境温度:环境温度不高于+40℃,不低于-25℃;
●海拔不超过 2000m;大于 2000m~5000m 选用高海拔柜型;
●周围空气相对湿度不大于 95%(在25℃时);
●在无摇动和冲击振动的地方;
●在无破坏绝缘及腐蚀金属的气体和蒸汽的环境。
产品结构与特点
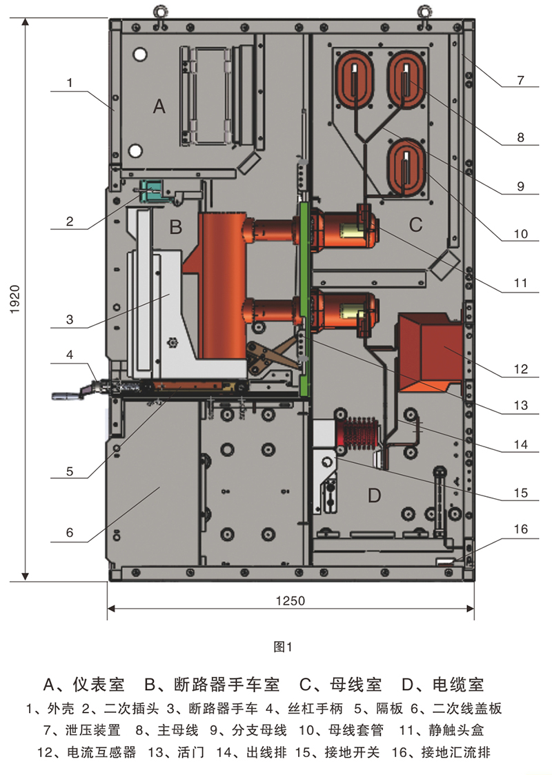
●标准断路器柜外形及结构布置图见图
●外形及安装尺寸见图2
●本开关柜与其它矿用开关柜相比有如下优点:
a、手车从工作位置移至试验位置,手车室门不需要打开,保证了长期处于冷备投状态的开关柜的防护等级;
b、手车处于试验位置时,不需打开柜门,就可操作接地开关的分合;
c、开关柜各室均有独立的泄压通道;
d、开关柜标准柜宽 80mm;特定场合可订制 650mm;
d、本开关柜可用于高海拔地区(外形尺寸变大),具有高原型开关柜检验资质。
●开关设备执行标准:GB/T12173及 GB3906,开关柜结构见图 1;开关柜由柜体和可抽出部件(简称手车)两部分组成。开关柜外壳防护等级为 1P54,开关柜可配用真空断路器、PT 及计量手车。本柜具有架空进出线、电缆进出线及联络等方案,可根据用途将一次方案进行排列组合,完成配电需求的各种功能。
●开关设备的外壳和隔板是由覆铝锌钢板经 CNC 设备加工制成,使整个柜体不仅具有精度高、还有很强的抗腐蚀与抗氧化作用。由于采用多重折边工艺使柜体整体机械强度变高,零部件通用性强、占地面积少、便于安装运行。开关柜壳体用金属隔板分隔成手车室、母线室、电缆室、仪表室开关柜柜门采用喷塑工艺,使其表面抗冲击、耐腐蚀,并保证了外观的质量。
●电流等级提升到 1600A 满足更大负荷的要求:随着矿山负荷的加大该产品的额定电流从 630A 发展到 1600A,开断电流从 12.5KA 发展到 31.5KA,以此满足负荷日益增长的要求。
●真空断路器手车:机械联锁安全可靠灵活。根据用途手车分为断路器手车、电压互感器手车、计量手车等,相同规格手车能实现互换。手车在柜内具有试验和工作位置,每个位置均设有定位装置,以保证联锁可靠。使用时必须按联锁顺序进行操作。各种手车均采用丝杠摇进、退出,操作轻便、灵活。本开关柜根据需要可作为智能化开关柜使用,通过地面调度室对手车的进岀及接地开关的分合进行自动控制。当手车移出柜体时,用专用转运车,进行各种检查维护。

●开关柜柜体
开关设备由断路器手车室、母线室、电缆室、仪表室组成。
●手车室
手车采用丝杠摇进、退出,使手车在工作位置、试验位置转换。金属活门安装在手车室后壁上,手车从试验位置移动到工作位置过程中,活门自动打开;退出手车,活门板自动闭合,将静触头遮挡,保证操作人员不触及带电体。手车只有在开关柜柜门关闭情况下方可操作,通过观察窗可以看到手车在柜内所处的位置。手车处于工作位置时,可通过门上的应急手动分闸按钮,对断路器进行紧急分闸操作。
●母线室
母线室用于主母线安装,左右侧壁均有开孔,用于安装母线绝缘套管,将设备与设备之间的母线室隔开,避免事故发生时波及相邻开关柜
●电缆室
电缆室内可安装电流互感器、接地开关、避雷器等相关元器件及电缆。
●仪表室
仪表室用于按装各类继电保护元件、仪表以及特别要求的二次设备,在仪表室顶部设有二次小母线。
●泄压通道
在手车室、母线室、电缆室的上方均设有独立的泄压通道。当各隔室发生内部故障电弧时,柜体顶部压力释放金属板自动开启,释放压力、排出气体,以保证人员和设备的安全
●二次插头与手车的联锁
开关柜与手车的电气联接是通过二次插头来实现的。二次静触头座装设在开关柜断路器室的右上方,手车只有在试验位置时,才能插拔二次插头。手车处于工作位置时,二次插头被锁定,不能插拨。
●防止误操作联锁装置
开关柜具有可靠的防误联锁装置,为操作与维护人员提供可靠的安全保护,满足“五防”要求。
a、防止带负荷推拉断路器手车:断路器手车只有在试验或工作位置时,才能进行合分闸操作。断路器合闸之后,手车将被锁定无法移动;
b、防止误分、误合断路器、负荷开关、接触器:只有手车在试验或工作位置时,才可以合、分闸操作
c、线防止带处电合手接地合开关:接地时开关仅在车手车不处于从试验位故置及位柜外置时才能进合闸操作。当接地开关处于合闸状态时,手车不能从试验位置推至工作位置;
d、防止接地开关处于合闸状态时送电:接地刀必须处于分闸位置时,断路器手车才能推入工作位置进行合闸操作;
e、防止误入带电间隔:断路器手车必须处于试验位置,并且接地开关处于合闸状态时,才能打开后门(不带接地开关时应先打开后门的电磁锁);手车从工作位置移至试验位置后,活门将静触头遮挡。
随柜物品
●开关柜的安装使用说明书;
●装箱单;
●主要元件说明书;
●信息反馈单;
●开关柜二次原理图、接线图;
●开关柜出厂检验报告;
●配件与专用工具;
●合格证。
订货
订货资料
●系统图、排列图及平面布置图,开关柜内所装配电器元件的规格、数量及品牌;
●用户可根据实际需要,按线路选型方案选配,负载名称及额定电流;
●各馈出单元的用途牌字样;
●地脚槽钢及电缆头,制造厂不供应,要求提供主母排时应在合同中注明;
●开关柜外壳颜色应注明,未注明时按常规供货;
●有特别方案和要求时,可按用户要求进行设计和供应;







