
产品用途
GKD矿用一般型低压开关柜(又称为矿用一般型低压开关柜,矿用一般型低压柜,矿用低压开关柜,矿用低压柜)适用于各类矿井无爆炸危险的场所,供交流50赫兹1140伏或660伏或380伏的供电系统的动力配电、电动机启动和127伏照明之用。也可作为牵引机车整流柜及井下变电所的直流电源柜等用途。本开关柜有检漏保护单元,特别适合井下使用。
矿用一般型低压开关柜产品特点
1、外壳防护等级高:水平母线电流不超过630A为IP54,适合矿井使用。
2、绝缘水平高:主回路母排表面采用绝缘热缩套管封闭。
3、一次方案齐全:具有功率因数补偿柜、变频启动柜、软启动柜、牵引机车整流柜和微机监控高频开关直流电源柜等多种实用方案。
4、结构特点:开关柜基本结构系户内全封闭式,采用薄钢板弯边和型钢焊接成型,电缆可以从柜底电缆引入装置中进出,前后有门,前门上装有控制,操作、测量和指示的开关,按钮、表计和信号指示灯,后门供安装维修之用,柜内主母线置于开关柜上部,用高强度绝缘子固定。电器元件装于箱内开有长腰孔的角钢上,用螺栓紧固,可以左右上下任意调节安装方便灵活。开关柜门与柜体之间采用异形橡胶嵌条来到密封的要求,柜顶做成一定的斜度,具有防尘,防滴作用,柜前操作,柜前柜后检修,可单独使用或排列使用。
矿用一般型低压开关柜使用范围
1、海拔高度不超过2500米;
2、环境温度为-5℃~+40℃;
3、周围空气相对湿度不大于95%(在25℃时);
4、在没有火灾、爆炸、严重污秽、化学腐蚀和剧烈震动的场所;
5、允许有少量垂直滴水的地方;
6、允许在-30℃时储运。
矿用一般型低压开关柜型号含义

矿用一般型低压开关柜主要技术参数
额定电压(V)380,660, 1140额定电流(A)5~630 800~1600 2000~3150额定短路开断电流(KA)660V102020380V153050额定短时(1S)耐受电流(KA)153050额定峰值耐受电流3063105外壳防护等级IP54IP30IP30开关柜宽度(mm)80010001200
矿用一般型低压开关柜规范性引用文件
下列文件对于本文件的应用是必不可少的。凡是注日期的引用文件,仅所注日期的版本适用于本文件。凡是不注日期的引用文件,其版本(包括的修改单)适用于本文件。
GB 3636.1-2010 爆炸性环境 第1 部分:设备通用要求
GB 3836.3-2010 爆炸性环境 第3 部分:由增安型“e”保护的设备
GB 14048.1-2012 低压开关设备和控制设备 第1 部分:总则
GB 14048.2-2008 低压开关设备和控制设备 第2 部分:断路器
GB/T 4208-2008 外壳防护等级(IP 代码)
GB/T12173-2008 矿用一般型电器设备
GB/T156-2007 标准电压
GB/T191-2008 包装储运图示标志
GB/T2423.4-2008 电工电子产品环境试验 第2 部分:试验方法试验Db: 交变湿热(12h+12h 循环)
GB7251.1-2013 低压成套开关设备和控制设备 第1 部分:总则
MT871-2011 矿用防爆低压交流真空馈电开关
AQ1043 -2007 矿用产品安全标志标识
矿用一般型低压开关柜基本参数
额定电压:380V、660V、1140V;
额定电流:3200A、2500A、2000A、1600A、1250A、 800A、630A、500A、315A、200A、150A、100A、50A;
短时耐受电流能力:40kA/1s(AC 660V),50kA/1s( AC 380V);
额定限短路分断能力:50kA( AC 660V) ,80kA( AC 380V);
额定运行短路分断能力:40kA,65kA;
型式:KY、KA;
防护等级:IP54;
矿用一般型低压开关柜技术条件
● 一般要求
开关柜应符合本标准的要求,并按国家指定的检验单位批准的图样及技术文件制造。
除符合本技术条件外还应符合GB/T12173-2008 标准的规定。
● 环境条件
开关柜正常工作的使用环境条件为:
a) 海拔高度:2000m;
b) 环境温度:-20℃ ~40℃;
c) 相对湿度:95%;
d) 在无破坏绝缘的气体或蒸汽环境中
f) 在无瓦斯无粉尘爆炸性环境中使用
g) 无剧烈颠簸振动冲击的场所;
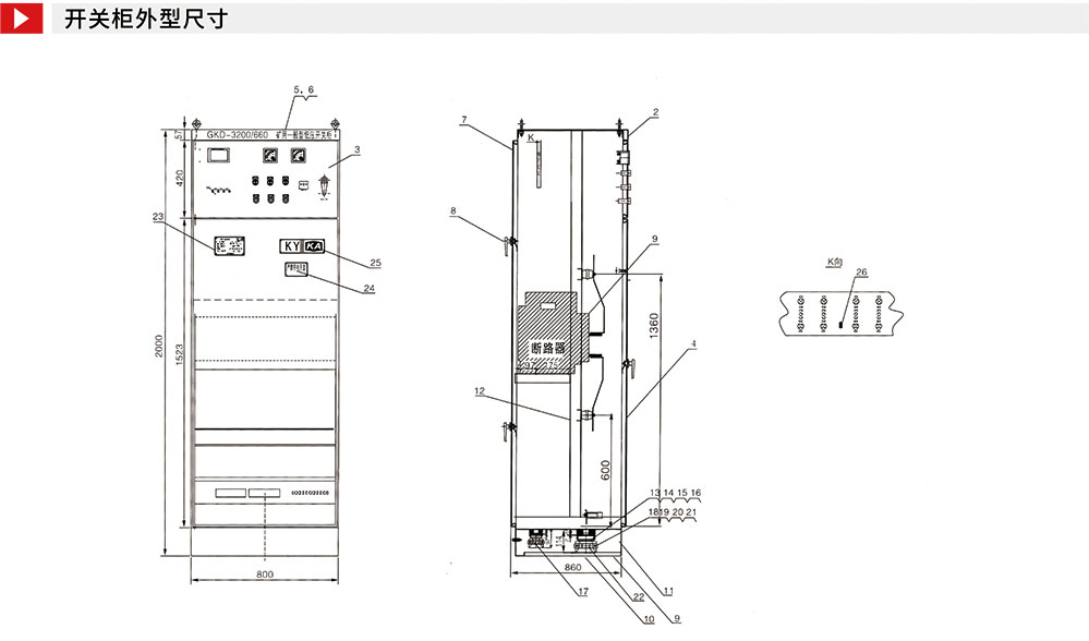
矿用一般型低压开关柜外壳结构图
● 材料
开关柜外壳采用2mm 厚冷轧钢板制成。
● 强度
开关柜外壳材质符合GB3836.1-2010 第26.4.2 的规定,并均应承受1kg/7J 的冲击强度冲击试验。
● 防护等级
开关柜外壳的防护能力应符合GB3836.3-2010 第4.9 条的规定,防护能力应不低于IP43。
● 表面温度
表面温度应不高于85℃,操作手柄、手轮应不高于60℃。在结构上能防止人员接触的情况下,电源箱的表面温度不高于℃。
● 紧固件
1、开关柜紧固件应符合GB3836.1-2010 中第9 章的规定,且螺栓直径应不小于M6。
2、一般情况下,应采取防止紧固件因振动而松脱的措施。
● 连接件
与外部电路连接的连接件应有足够大的尺寸,以便与截面积至少等于电器设备额定电流相应的导线可靠连接
1、连接件应满足:
a) 可靠地固定,不会自行松动;
b) 具有使导体不会从指定位置滑出的结构;
c) 保证适当的接触压力,不对连接导线产生影响功能的损伤,这尤其适用于连接件与多股导线直接卡紧的方法。
2.不允许使用的连接件
a) 具有能损坏导体的尖锐棱边;
b) 在设备制造厂规定的正常拧紧过程中转动,扭转或永久性变形;
连接件的结构必须保证在正常运行情况下,不会因温度发生变化面明显削弱其接触压力。不应通过绝缘材料传递接触压力。
用来压紧导线的连接件须有弹性零件。连接导体截面积不超过4mm² 的连接件也应能和更小截面积的导体可靠连接。

